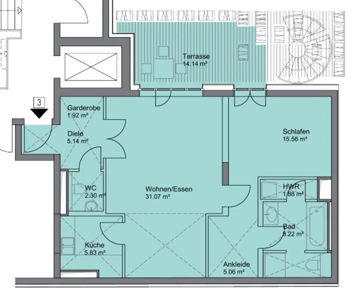
Diese großzügige, rund 84 m² große Wohnung vereint der neue moderne Wohnkomfort mit Stil. Hohe Decken, große Fenster und ein durchdachtes Raumkonzept schaffen ein helles und einladendes Ambiente.
Apartment • Build Year 2010 • First Occupancy
Neubauwohnung im beliebten Friedrichshain
84 m²
2 Rooms
2. Floor
Balcony
€789,900
- Sold
New Living Immobilien hat uns nicht nur eine Wohnung gefunden, sondern ein Zuhause geschaffen. Ihre Professionalität hat uns von Anfang an überzeugt.
2 Rooms
- 1 Bedroom
- 1 Living Room
- 1 Bathroom
- 1 Kitchen
Amenities
- Badewanne
- Einbauküche
- €789,900
- Est. Purchase Price
- €23,618
- Commission (incl. VAT)
- €480
- Maintenance / Month
- €17,299
- Est. Additional Purchase Costs
- €25,000
- Est. Annual Rent Income
- 3.16 %
- Est. ROI
Location
Mitten in der Hauptstadt, mitten im Kiez, mitten im Leben: Ob mit Freunden grillen im nahegelegenen Volkspark, ein Bummel über den Flohmarkt am Boxhagener Platz oder auf ein Getränk in eines der vielen kleinen Cafés einkehren – Friedrichshain lässt einfach keine Wünsche offen.
This map is provided by OpenStreetMap. When loading the map, your IP address will be transmitted to servers operated by the OpenStreetMap Foundation (OSMF) in the United Kingdom or the EU.
By clicking “Show map”, you consent to this data transfer.
Other
Energieausweis vorhanden. Herunterladen
€789,900
- Sold
New Living Immobilien hat uns nicht nur eine Wohnung gefunden, sondern ein Zuhause geschaffen. Ihre Professionalität hat uns von Anfang an überzeugt.
Kontakt aufnehmen
Kontaktieren Sie uns für Ihre Immobiliensuche! Wir helfen Ihnen umgehend etwas passendes zu finden.